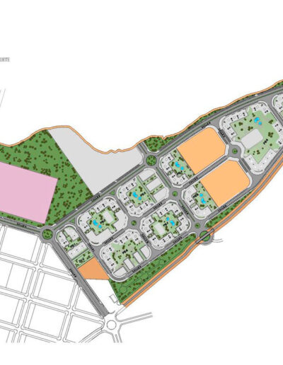
SECTOR URSR-ICLA. CENTRO LOGÍSTICO DE ANTEQUERA FASE 2
Plan Parcial (2011)
Proyecto de Urbanización (2013)
Superficie: 1.465.922m2 (146,59 Has)
SECTOR URSAE 4. AMPLIACIÓN POLÍGONO INDUSTRIAL PUERTO LUMBRERAS (MURCIA)
Plan Parcial (2011)
Superficie: 347.579m2 (34,75 Has)
CIUDAD AEROPORTUARIA (ANTEQUERA)
Estudio urbanístico de Ordenación (2006-2008)
Superficie: 14.121.690m2 (1.412,16 Has
SECTOR SUP-7. LA VERÓNICA. ANTEQUERA
Plan Parcial (2007)
Proyecto de Urbanización (2007)
Superficie: 1.465.922m2 (146,59 Has)
SECTOR UR-5B. VILLANUEVA DE ALGAIDAS (MÁLAGA)
Plan Parcial (2007)
Proyecto de Urbanización (2007)
Superficie: 22.372 (2,23 Has)
SECTOR UR-7. VILLANUEVA DE ALGAIDAS (MÁLAGA)
Plan Parcial (2006)
Proyecto de Urbanización (2006)
Superficie: 140.492 (14,49 Has)
SECTOR UR-1. MOLLINA (MÁLAGA)
Plan Parcial (2001)
Proyecto de Urbanización (2007)
Superficie: 63.297m2 (6,33 Has
POLÍGONO INDUSTRIAL LAS VIÑAS, MOLLINA (MÁLAGA)
Plan Parcial (2000)
Proyecto de Urbanización (2002)
Superficie: 172.589m2 (17,25 Has)
SECTOR CENTRO LOGÍSTICO DE ANTEQUERA FASE 1
Plan Parcial (2000)
Proyecto de Urbanización (2002)
Superficie: 540.000m2 (54,00 Has)
SECTOR SUP-2, FUENTE DE LA MORA, ANTEQUERA (MÁLAGA)
Plan Parcial (1999)
Proyecto de Urbanización (2001)
Superficie: 84.179m2 (84,17 Has)
Sector SUP-4 de Antequera
Plan Parcial (1999)
Proyecto de Urbanización (2001)
Superficie: 180.255m2 (18,02 Has)
