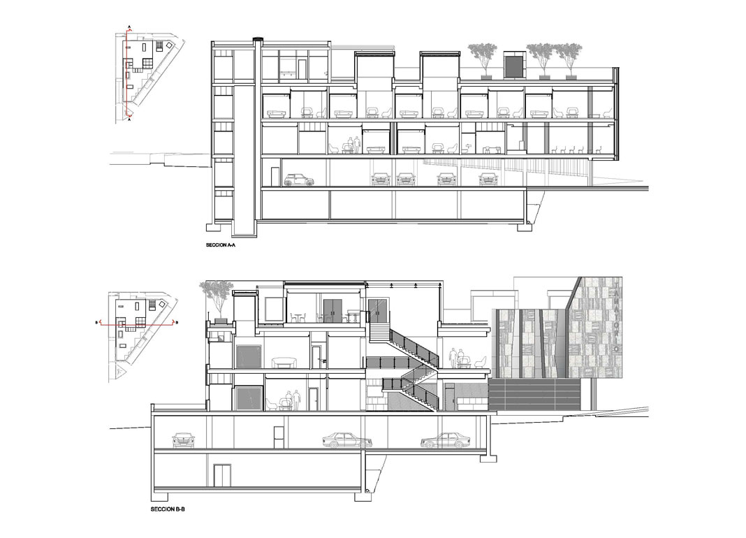
El proyecto se inspiró visualmente en la arquitectura funeraria neolítica (el menhir) y en la piedra como elemento esencial de la arquitectura tradicional del pueblo celta. Este discurso se ha trasladado a las fachadas principales, las cuales se han compuesto intercalando paños verticales macizos de formas irregulares revestidos de granito tosco con huecos verticales compuestos de muro cortina de vidrio espejo con carpintería oculta. De esta forma, los paños de piedra se encuentran intercalados con paños acristalados, que al reflejar principalmente el cielo consiguen dar la impresión de que esos elementos pétreos y pesados no tienen sustentación aparente. La organización del programa y las necesidades del cliente estuvieron condicionadas por la forma triangular de la parcela y la edificabilidad de la misma. En las plantas baja y primera, las salas velatorio y los diferentes usos para el público (recepción, oficinas, capilla, etc.) se dispusieron en torno a un espacio común triangular que hace las veces de antesala y vestíbulo, lo que no es común en este tipo de edificios que suelen tener una disposición lineal de los velatorios, permitiendo con esta solución que se perciba visualmente la amplitud del espacio en su totalidad. La luz juega un papel fundamental dentro del edificio, ya que interiormente la protagonista es sin duda la escalera que comunica los tres niveles (planta baja, primera y ático) que se corona con una caja de cristal por donde penetra la luz natural.
Situación
C/ Curie, Nº 3. Polígono La Grela-Bens. A Coruña
Fecha
2012
Superficie Construida
4.556,80 m2
Presupuesto de Contrata
3.661.540 €
















